L'édito Ouvrage 008 - Notre vision de l'architecture d'intérieur

La Perspective,

l’Art et la Matière

La fin d’été sonne pour beaucoup, la fin des vacances et le bilan avant la reprise. Est-ce que l’été a été doux, prolifique, reposant ?

A-t-il été fougueux, créatif, enivrant ? Comment se remettre en route en douceur, comment relancer les projets mis en pause et se concentrer ?

Un exercice pas toujours évident, mais nous misons sur la beauté, sur ce qui fait de notre passion un métier. La perspective, l’art et la matière : 3 mots qui nous définissent, et que l’on a à cœur de vous faire lire au travers de nos engagements.


L’art au centre

le refus du banal

L'art occupe une place centrale : un rejet du commun, une expression de la création sur mesure. Une idée de l’histoire de l'art et de la culture qui prône l'accessibilité tout en étant ancrée dans l'héritage local. La passion de l’objet, de son histoire et son envie de la communiquer. Laisser une trace de vie, qui se veut à la fois novatrice et traditionnelle.

Le durable

dans son temps avec un temps d’avance

Chiner, réutiliser, transmettre, faire traverser les âges, perpétuer - car l'histoire de la vie se transcrit à travers l'histoire de l'objet. Une seule volonté : apporter de l’histoire aux lieux de vie des gens.

L’espace repensé

l’espace de vie, la vie de l’espace

Plus petit, collectif, pour travailler, pour être en famille ou s'évader, il faut désormais penser l’espace de manière globale : remplir l'espace, mais aussi savoir le vider. Être capable de se projeter dans l’espace, projeter la vie. Chaque projet Ouvrage est créé à mi-chemin entre le présent et l’avenir. Nous le pensons évolutif et modulable.

L’accompagnemenT

la relation à l’autre 

Ouvrage s'adapte à la diversité, se réinvente pour d'autres domaines, développe d'autres compétences. Le management inclusif, les personnalités singulières qui sont force, la réalisation de chacun. Une forte empathie en ressort vis-à-vis des clients, une capacité de lecture de leurs besoins et une lisibilité claire de leurs attentes. Présence, bonne humeur, joie - tels sont les ingrédients de l'accompagnement, qu'il s'agisse d'aider à l'achat, à la recherche de lieux ou à la réalisation de projets de A à Z.


Les (belles) nouvelles de l’agence

Un nouveau chantier terminé :  DECORUS 

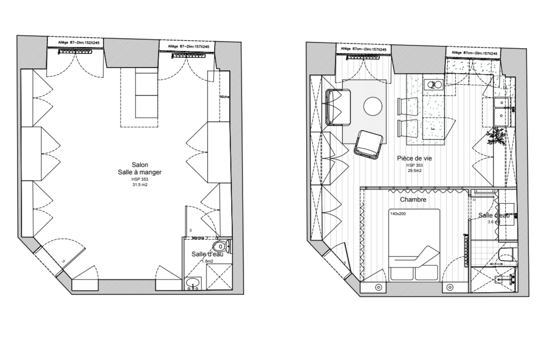
Ce joli Studio aux grands volumes situé en plein cœur du triangle d'or de Bordeaux a été entièrement réaménagé afin d’y créer un espace nuit, séparé de l’espace de vie.

Nous voulions, avec son propriétaire, en finir avec le lit d’appoint, à replier tous les soirs et offrir aux futurs habitants le confort et l’espace d’un appartement 2 pièces.

C’est donc une immense verrière sur mesure qui a été réalisée, afin de créer la séparation entre la chambre et la cuisine sans pour autant perdre en luminosité.

La cuisine s’est vue dotée d’un îlot, pour être également un espace repas.

Enfin, la salle d'eau qui contenue dans un petit espace pour ne pas perdre de surface habitable nous a permis de réutiliser une menuiserie existante de l'appartement, ainsi transformé en meuble vasque !

Le classicisme bordelais de l’ancien conservé, dans ce petit écrin plein de charme.


Retour sur un avant après de plan et de résultats :

Ici nous avons révélé l’ancien, créé des espaces lumineux et volumineux, utilisé des matériaux de qualité. Les boiseries ont été conservées et notre plan s’est construit tout autour.


Nos dernières recrues

Chez Ouvrage nous avons à cœur de former et transmettre à celles et ceux qui feront l’architecture d’intérieur de demain.

LAURELINE,

Après deux stages réussis au sein de l’agence, elle rejoint l’équipe de Bordeaux pour 2 ans en alternance. 

L’architecture pour elle c’est donner une dimension authentique et intemporelle, créer des lieux de vie et de souvenirs, porter sa créativité dans une dimension ambitieuse pour transformer des intérieurs et leur donner du caractère !



ELODIE,

Elle aussi après un stage très réussi, rejoint l’agence de Paris pour 2 ans d'alternance, ce qu’elle aime dans l’architecture d’intérieur : c’est faire des recherches, (de matériaux ou de créateurs et créatrices) selon des critères toujours différents, trouver les pépites qui vont enjouer les client.e.s, parfois même leur faire changer d’avis sur des aprioris, et ce que j’aime par dessus tout c’est voir leurs regards une fois que le projet est livré !

L'équipe Mesetys